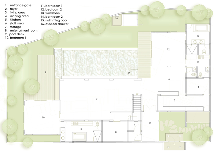
Floor Plan

Find Us

Our Booking Calendar

 

Reservations

Contact Villa manager and owner via email  keith.megan@hotmail.com

Rates will be provided along with availability upon enquiry



Name :
Email :
Phone :
Address :
Coutry :
Check in :
Check out :
Adult :
Child :
Message :
    Please enter the anti spam code below:
    verification code